Sterling Grove of Surprise
Save
All
Create
Share
Subdivision Documents
8 of 25
Previous Album
Next Album
Sterling Grove of Surprise
Subdivision Documents
Covenants & Restrictions, Architectural Review Forms, Marketing Plats, etc.
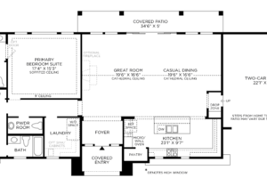
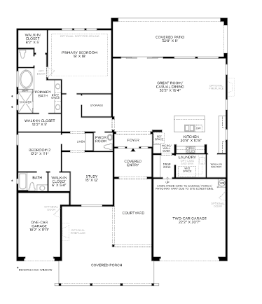
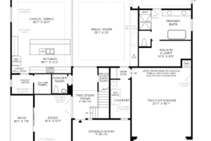
Screenshot__5_.png
×
Login to Your Hoodle Account
Remember me
Forgot your password
×
Create Your Hoodle Account
Sign up with Facebook
or
By clicking sign-up you indicate that you have read and agreed to the Terms of Service and Privacy Policy.