Elyson

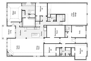
Featured Home $399,990 17 of 17
Previous Album Next Album